Sold

2F Matheson Road, Applecross

SOLD for $1,900,000

4 2 2

BRAND NEW ON RIVER DOOR STEP!

Designed and built by Precision Build, this brand-new home exemplifies how thoughtful architecture can transform a compact inner-city lot into a haven of comfort, light, and modern design. Located in one of Applecross’ rapidly transforming and most sought-after neighbourhoods, this home is a statement in urban living without compromise.

 FEATURES:

/ Built by Precision Build that specialise in custom boutique builds 
/ Brand new street front home
/ Active and passive solar benefits
/ Sustainable and energy efficient
/ Double glazed windows throughout and acoustic insulation  
/ High-end kitchen with stone benchtops and tile splashbacks
/ Premium Caroma Urbane II fixtures and fittings 
/ Integrated bespoke storage throughout
/ Abundance of power points
/ Low maintenance materials including pre-finished fibre cement cladding
/ Low maintenance garden including reticulation
/ Shadow line cornices throughout the house
/ Outdoor alfresco
/ Solid Oak engineered timber floors to lower level
/ Velux Window
/ Full height tiling in bathrooms and premium Timberline vanities 
/ 3rd toilet downstairs
/ Three meter ceilings on lower level
/ Raked ceilings in the master bedroom and upstairs living area
/ Reverse ducted air conditioning (Mitsubishi) 
/ Large format tiles to wet areas all with stone tops
/ Aggregate driveway

The design ethos behind the home centres on creating flexible, functional spaces that can evolve with a growing family. Every aspect of the home is tailored for adaptability, ensuring that it remains both practical and comfortable over time. The finishes were meticulously chosen for their durability, emphasising low maintenance and sustainability.

The residence's exterior is constructed from resilient materials, including concrete bricks and a three-coat external acrylic render. BEC Trio prefinished external lining boards add texture to the entry portico and upper eaves, while matte-finish Colorbond cladding is used for the roof and wall cladding, contributing to the home's contemporary yet robust aesthetic.

Inside, the interiors are softened with natural materials, creating a warm and inviting environment. Upstairs, Berber carpet provides a soft touch under foot, while solid oak timber flooring downstairs adds an industrial flavour. Solid timber window sills, 'fingerprint proof' laminate panels and cabinets and melamine complete the design.

At the heart of the home lies a central family space, an important design feature that floods the home with natural light, facilitates airflow and creates a visual connection with the street.

Every room in the home is carefully considered, offering flexibility in how the spaces are used. The double garage, connects seamlessly to the outdoor living area as well as shoppers’ entry. The living area and al fresco flow naturally and the design allows the two spaces to be combined for larger gatherings, demonstrating the home's ability to expand and contract to accommodate various family dynamics and social occasions.

Maximising space was a key priority in the design of the home. Design and integrated storage solutions ensure that every inch of the home is utilised efficiently, proving that homes on smaller lots can still offer ample functionality without sacrificing everyday needs or comfort.

Thermal and environmental efficiency is another hallmark of the home. The home has double glazing throughout and is designed to take advantage of cross-flow ventilation and boasts primary exposure to the natural elements. These features ensure that the home remains cool in summer and warm in winter, reducing the need for artificial heating and cooling.

Nestled on a picturesque street in a family-friendly neighbourhood, the new home is move in ready and offers both sanctuary and convenience. With the river, Wireless Hill and public transport just a short walk away, residents enjoy easy access to vibrant cafes, shops and green spaces. Commuting to the city is effortless, whether by bus, Uber, or a short drive.


PROPERTY PARTICULARS:

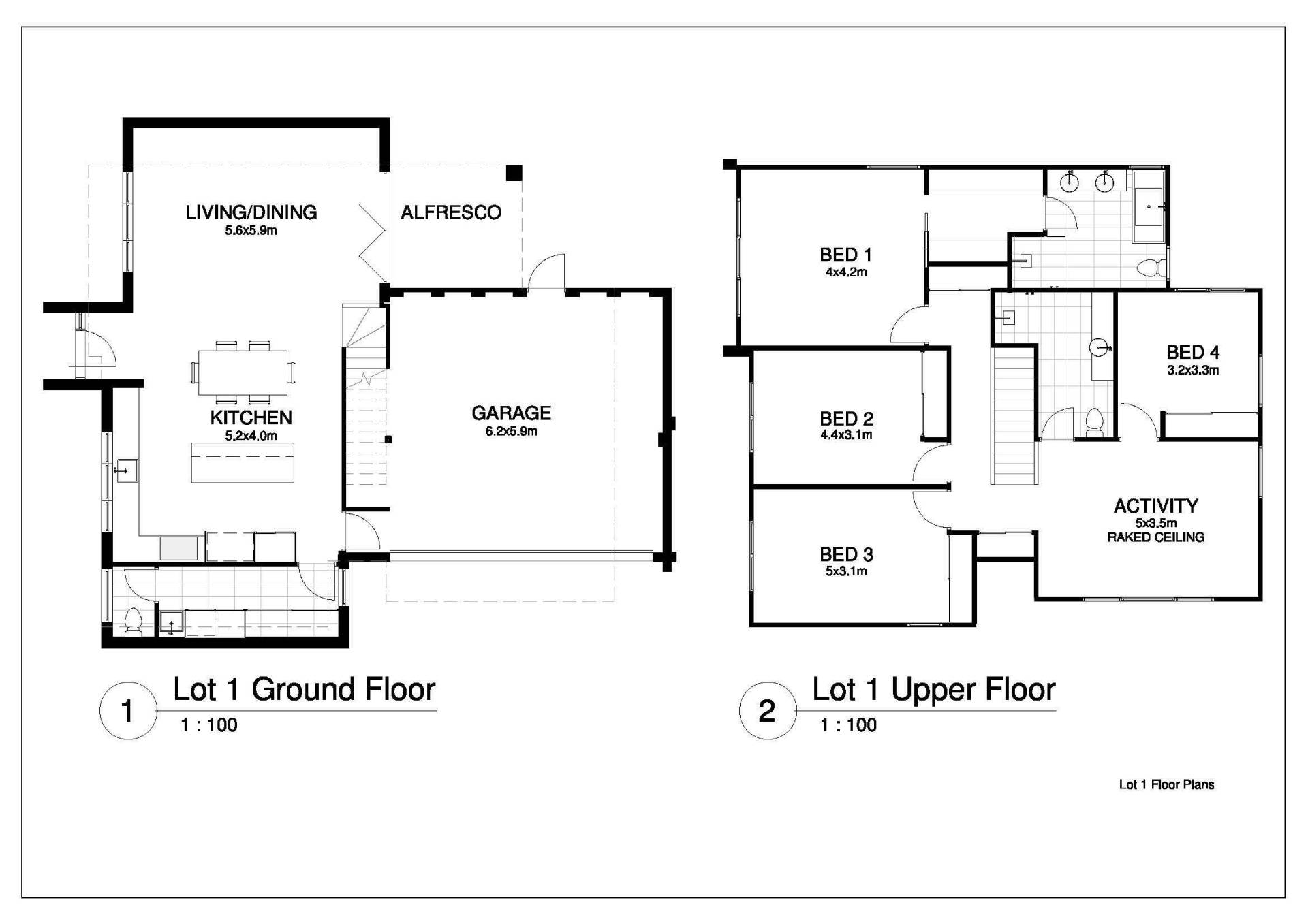
Built Up Area | 237m²
Parking | Double Garage
Year Built | 2025


 

4 2 2

Details

Address 2F Matheson Road, Applecross
Price SOLD for $1,900,000
Property Type Residential
Property ID 1069
Category House

Tools

Share This Property