Sold

2/24 Charles Street, South Perth

SOLD for $750,000

3 2 2 180 m2

VERSATILE EASY LIVING - Superb Location!

NOW SOLD- Multiple Offers Received. More Properties Wanted!

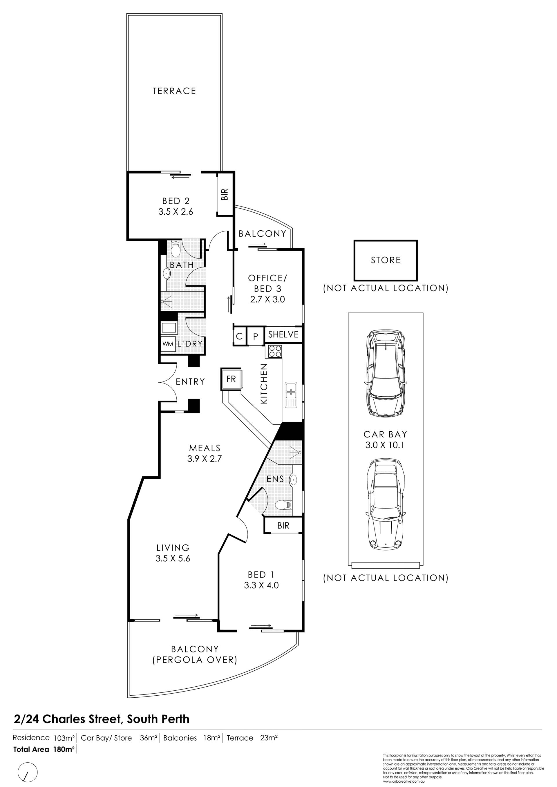
Here is your opportunity to secure the spacious, secure apartment lifestyle in this boutique, prime located attractive complex of 6.

Set on the first floor, you have the convenience of being a short walk to outstanding local café, restaurant infrastructure, the Mends Street ferry, and easy access onto the freeway.

This attractive apartment offers the advantage of a spacious rear terrace/ balcony area adjacent bedroom two, and a versatile third bedroom currently being used as a home office/ study room with its own rear balcony. 

Double lock up garage in tandem arrangement are provided, reverse cycle air-conditioning and two ensuite bathrooms. 

A well-appointed kitchen offers stone bench tops, dishwasher, and ample cupboard space.

The front balcony provides plenty of space to entertain, relax with a pleasant outlook over the suburb with a northerly aspect.

The complex provides a private, generous below ground swimming pool for your shared enjoyment.

A rewarding, relaxed easy-care lifestyle awaits.

All enquires to Exclusive Selling Agent Ian Barnes 0423 123 533.

 

STRATA LEVIES: $1,738/ QTR

WATER:  $1,315.37/ PA

 

 


.

 

3 2 2 180 m2

Details

Address 2/24 Charles Street, South Perth
Price SOLD for $750,000
Property Type Residential
Property ID 972
Category Apartment
Land Area 180 m2
Floor Area 103 m2

Tools

Share This Property