Leased

5/1234 Albany Highway, Cannington

$69,000 + V/O's + GST Per Annum

4

MAXIMISE YOUR EXPOSURE

Located on Albany Highway Cannington just back from the corner of Manning Road, and in close proximity to the Carousel Shopping Centre, this spacious multi-functional showroom is now for lease.

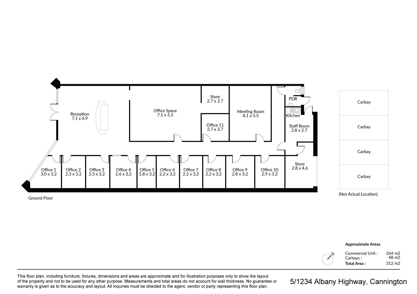
Surrounded by some of Australia’s most prominent showroom retailers at the city end of Cannington’s popular popular commercial stripe, 5/1234 Albany Highway, Cannington is a spacious showroom, with great high exposure, rear loading access, ample parking, back of house amenities with kitchen and toilet, ducted air-conditioning, partitioned spaces, plus sufficient parking for customers.

With brilliant highway exposure, prominent signage opportunities and surrounded by national brands, the position and opportunity on offer is second to none.   

Building Area | 264 sqm 
Current Rent | $69,000 pa + GST
Outgoings | $12,528 pa + GST
Available | Subject to Negotiations

4

Details

Address 5/1234 Albany Highway, Cannington
Price $69,000 + V/O's + GST Per Annum
Property Type Commercial
Property ID 977
Category Retail, Showrooms/Bulky Goods, Medical/Consulting
Office Area 264m2

Tools

Share This Property